Logo RE/MAX représentant un ballon bleu et rouge au-dessus du mot-symbole.

Numéro Centris : 27652912

Maison de plain-pied

Rue Vigneault, Otterburn Park, J3H 0T3

604 479,00 $ +TPS/TVQ

635 m²
4 chambres
2 salles de bain

PLUSIEURS MODÈLES ET STYLES DISPONIBLES : Découvrez cette résidence de style farmhouse dans un nouveau développement. Cette construction neuve, réalisée avec des matériaux de haute qualité, comprend trois ou deux chambres à coucher au rez-de-chaussée, répondant ainsi aux besoins des familles modernes. Profitez des avantages d'un quartier en plein développement, incluant une école primaire à proximité. Vivez le luxe d'une maison conçue avec soin pour votre confort et votre bien-être. Possibilité sous-sol fini. Possibilité de personnalisée de A à Z votre projet de construction neuve

Caractéristiques

Allée

Non Pavée

Armoires

Stratifié, Mélamine

Mode de chauffage

Plinthes électriques

Approvisionnement en eau

Municipalité

Énergie pour le chauffage

Électricité

Équipement disponible

Thermopompe murale, Échangeur d'air, Installation aspirateur central

Fenêtres

PVC

Fondation

Béton coulé

Revêtements

Vinyle, Pierre de béton, Aluminium

Proximité

Transport en commun, Ski de fond, École secondaire, École primaire, Piste cyclable, Parc-espace vert, Golf, Garderie/CPE, Autoroute/Voie rapide

Salle de bains/salle d'eau

Douche indépendante

Services disponibles

Détecteur d'incendie

Sous-sol

Partiellement aménagé, 6 pieds et plus

Stationnement (total)

Extérieur (4)

Système d'égouts

Municipal

Type de fenêtre

Manivelle

Toiture

Bardeaux d'asphalte

Topographie

Plat

Zonage

Résidentiel

Inclusions et Exclusions

INCLUSIONS

Annexe prévue par entrepreneur.

EXCLUSIONS

Aménagement paysager.

Autres données sur la propriété

Dimensions

13' X 51.03'

Année de construction

À construire

Taxes

Taxes municipales 0,00 $
Taxes scolaires 0,00 $

Taxes municipales : 0,00 $

Taxes scolaires : 0,00 $

Carte

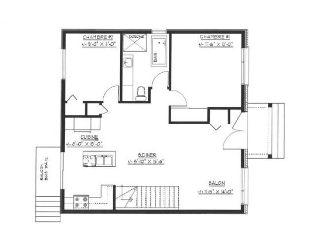
Détails des pièces

Pièces Niveau Dimensions Revêtement Détails
Hall d'entrée/Vestibule 1er niveau/RDC 6x5 P Céramique
Salon 1er niveau/RDC 11.8x14 P Bois
Salle à manger 1er niveau/RDC 8.10x13.6 P Bois
Cuisine 1er niveau/RDC 8x15 P Bois
Chambre à coucher principale 1er niveau/RDC 12x11.6 P Bois
Chambre à coucher 1er niveau/RDC 9x11 P Bois
Salle de bains 1er niveau/RDC 9x6.5 P Céramique
Chambre à coucher Sous-sol 10x9.6 P Béton a finir
Chambre à coucher Sous-sol 10x9.6 P Béton a finir
Salle de bains Sous-sol 7x10 P Béton a finir
Salle familiale Sous-sol 15x26 P Béton a finir

Pièce : Hall d'entrée/Vestibule

Niveau : 1er niveau/RDC

Dimensions : 6x5 P

Revêtement : Céramique

Pièce : Salon

Niveau : 1er niveau/RDC

Dimensions : 11.8x14 P

Revêtement : Bois

Pièce : Salle à manger

Niveau : 1er niveau/RDC

Dimensions : 8.10x13.6 P

Revêtement : Bois

Pièce : Cuisine

Niveau : 1er niveau/RDC

Dimensions : 8x15 P

Revêtement : Bois

Pièce : Chambre à coucher principale

Niveau : 1er niveau/RDC

Dimensions : 12x11.6 P

Revêtement : Bois

Pièce : Chambre à coucher

Niveau : 1er niveau/RDC

Dimensions : 9x11 P

Revêtement : Bois

Pièce : Salle de bains

Niveau : 1er niveau/RDC

Dimensions : 9x6.5 P

Revêtement : Céramique

Pièce : Chambre à coucher

Niveau : Sous-sol

Dimensions : 10x9.6 P

Revêtement : Béton

Détails : a finir

Pièce : Chambre à coucher

Niveau : Sous-sol

Dimensions : 10x9.6 P

Revêtement : Béton

Détails : a finir

Pièce : Salle de bains

Niveau : Sous-sol

Dimensions : 7x10 P

Revêtement : Béton

Détails : a finir

Pièce : Salle familiale

Niveau : Sous-sol

Dimensions : 15x26 P

Revêtement : Béton

Détails : a finir

Addenda

Construction personnalisable de A à Z : Construisez la maison de vos rêves en choisissant vos propres plans et en personnalisant chaque détail selon vos goûts. Profitez de la flexibilité totale dans la conception tout en respectant les possibilités d'implantation sur le terrain. Faites de votre vision une réalité dans un cadre qui répond parfaitement à vos attentes et à vos besoins.

ATTRAITS // CARACTÉRISTIQUES

* Style Farmhouse
* 2 Chambres à coucher au rez-de-chaussée
* Espace de vie commun à aire ouverte
* Possibilité de finaliser le sous-sol avec l'entrepreneur
* Matériaux haut de gamme
* Construction supérieure
* Nouveau développement
* Garantie GCR


ENVIRONNEMENT

* Près des routes 116, 133 & 223
* À quelques minutes de l'autoroute 20
* À proximité de la rivière Richelieu
* Près des services suivants:
- École primaire
- École secondaire
- Garderies & CPE
- Pharmacie
- Parcs
- Centre sportif Edmond-Auclair
- Etc.

Mathieu Carrière

Courtier immobilier

Maxime Bonnier

Courtier immobilier

Recevez en primeur les nouvelles propriétés dès leur mise en marché !

Inscrivez-vous dès maintenant à nos envois automatiques — c’est gratuit et sans engagement.

Ne manquez aucune opportunité !