Numéro Centris : 17444369

Maison de plain-pied

287 Rue Vigneault, Otterburn Park, J3H 4H3

678 408,00 $ +TPS/TVQ

588 m²
4 chambres
2 salles de bain

*PLUSIEURS MODÈLES ET STYLES DISPONIBLES** parfait mariage entre élégance & qualité de construction dans cette nouvelle résidence. Nichée au coeur d'un développement florissant, elle incarne le luxe décontracté. L'accent est mis sur la qualité, des fondations jusqu'aux finitions. Vous y trouverez un garage spacieux, 2 CAC au RDC pour une vie pratique & confortable. Les matériaux haut de gamme ajoutent une touche sophistiquée, tandis que les espaces de vie lumineux invitent à la détente. Profitez également des avantages d'une communauté dynamique, comprenant une école primaire. Possibilité de finaliser le sous-sol.

Caractéristiques

Allée

Non Pavée

Armoires

Stratifié, Mélamine

Mode de chauffage

Plinthes électriques

Approvisionnement en eau

Municipalité

Énergie pour le chauffage

Électricité

Équipement disponible

Thermopompe murale, Porte de garage électrique, Échangeur d'air, Installation aspirateur central

Fenêtres

PVC

Fondation

Béton coulé

Garage

Simple largeur, Chauffé, Attaché

Revêtements

Vinyle, Pierre de béton, Aluminium

Proximité

Transport en commun, Ski de fond, École secondaire, École primaire, Piste cyclable, Parc-espace vert, Golf, Garderie/CPE, Autoroute/Voie rapide

Salle de bains/salle d'eau

Douche indépendante

Services disponibles

Détecteur d'incendie

Sous-sol

Partiellement aménagé, 6 pieds et plus

Stationnement (total)

Au garage (1), Abri d'auto (4)

Système d'égouts

Municipal

Type de fenêtre

Manivelle

Toiture

Bardeaux d'asphalte

Topographie

Plat

Zonage

Résidentiel

Inclusions et Exclusions

INCLUSIONS

Annexe prévue par l'entrepreneur.

EXCLUSIONS

Aménagement paysager.

Autres données sur la propriété

Dimensions

13' X 45.26' Irrégulières

Année de construction

À construire

Taxes

Taxes municipales 0,00 $
Taxes scolaires 0,00 $

Taxes municipales : 0,00 $

Taxes scolaires : 0,00 $

Carte

Détails des pièces

Pièces Niveau Dimensions Revêtement Détails
Hall d'entrée/Vestibule 1er niveau/RDC 6.0x8.0 P Céramique
Salon 1er niveau/RDC 18.0x12.0 P Bois
Salle à manger 1er niveau/RDC 10.4x14.10 P Bois
Cuisine 1er niveau/RDC 12.0x13.10 P Bois
Chambre à coucher principale 1er niveau/RDC 13.0x12.10 P Bois
Chambre à coucher 1er niveau/RDC 10.4x12.2 P Bois
Salle de bains 1er niveau/RDC 10.4x8.0 P Céramique plancher chauffant
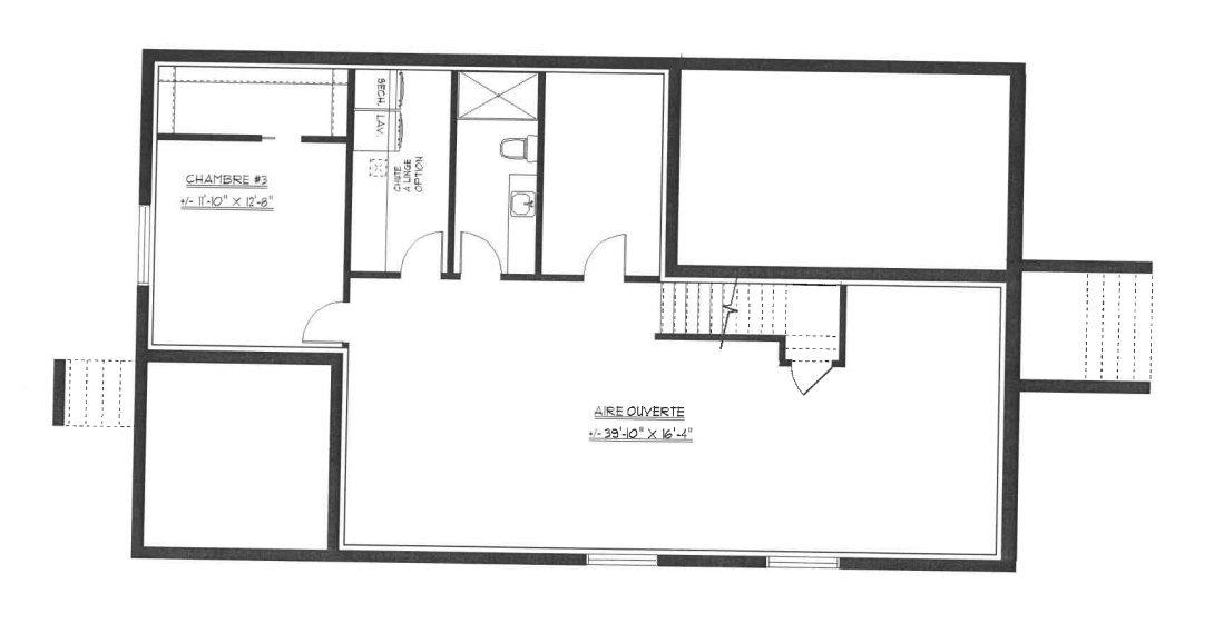
Salle familiale Sous-sol 25.10x16.4 P Béton a finir
Chambre à coucher Sous-sol 14.0x16.4 P Béton a finir
Chambre à coucher Sous-sol 11.10x12.8 P Béton a finir
Salle de bains Sous-sol 5.0x10.0 P Béton a finir
Salle de lavage Sous-sol 5.0x10.0 P Béton a finir
Atelier Sous-sol 8.0x10.0 P Béton a finir

Pièce : Hall d'entrée/Vestibule

Niveau : 1er niveau/RDC

Dimensions : 6.0x8.0 P

Revêtement : Céramique

Pièce : Salon

Niveau : 1er niveau/RDC

Dimensions : 18.0x12.0 P

Revêtement : Bois

Pièce : Salle à manger

Niveau : 1er niveau/RDC

Dimensions : 10.4x14.10 P

Revêtement : Bois

Pièce : Cuisine

Niveau : 1er niveau/RDC

Dimensions : 12.0x13.10 P

Revêtement : Bois

Pièce : Chambre à coucher principale

Niveau : 1er niveau/RDC

Dimensions : 13.0x12.10 P

Revêtement : Bois

Pièce : Chambre à coucher

Niveau : 1er niveau/RDC

Dimensions : 10.4x12.2 P

Revêtement : Bois

Pièce : Salle de bains

Niveau : 1er niveau/RDC

Dimensions : 10.4x8.0 P

Revêtement : Céramique

Détails : plancher chauffant

Pièce : Salle familiale

Niveau : Sous-sol

Dimensions : 25.10x16.4 P

Revêtement : Béton

Détails : a finir

Pièce : Chambre à coucher

Niveau : Sous-sol

Dimensions : 14.0x16.4 P

Revêtement : Béton

Détails : a finir

Pièce : Chambre à coucher

Niveau : Sous-sol

Dimensions : 11.10x12.8 P

Revêtement : Béton

Détails : a finir

Pièce : Salle de bains

Niveau : Sous-sol

Dimensions : 5.0x10.0 P

Revêtement : Béton

Détails : a finir

Pièce : Salle de lavage

Niveau : Sous-sol

Dimensions : 5.0x10.0 P

Revêtement : Béton

Détails : a finir

Pièce : Atelier

Niveau : Sous-sol

Dimensions : 8.0x10.0 P

Revêtement : Béton

Détails : a finir

Addenda

Construction personnalisable de A à Z : Construisez la maison de vos rêves en choisissant vos propres plans et en personnalisant chaque détail selon vos goûts. Profitez de la flexibilité totale dans la conception tout en respectant les possibilités d'implantation sur le terrain. Faites de votre vision une réalité dans un cadre qui répond parfaitement à vos attentes et à vos besoins.

ATTRAITS // CARACTÉRISTIQUES

* Style moderne
* 2 Chambres à coucher au rez-de-chaussée possibilité d'une 3e
* Espace de vie commun à aire ouverte
* Possibilité de finaliser le sous-sol avec l'entrepreneur
* Matériaux haut de gamme
* Construction supérieure
* Garage
* Nouveau développement
* Garantie GCR


ENVIRONNEMENT

* Près des routes 116, 133 & 223
* À quelques minutes de l'autoroute 20
* À proximité de la rivière Richelieu
* Près des services suivants:
- École primaire
- École secondaire
- Garderies & CPE
- Pharmacie
- Parcs
- Centre sportif Edmond-Auclair
- Etc.

Mathieu Carrière

Courtier immobilier

Maxime Bonnier

Courtier immobilier

Recevez en primeur les nouvelles propriétés dès leur mise en marché !

Inscrivez-vous dès maintenant à nos envois automatiques — c’est gratuit et sans engagement.

Ne manquez aucune opportunité !